Progetto cofinanziato POR FESR Liguria 2014-2020 “Digitalizzazione delle micro, piccole e medie imprese" - P:IVA: 01323950996 | Privacy Policy | Cookie Policy | Credits

Il muro abitato

medium

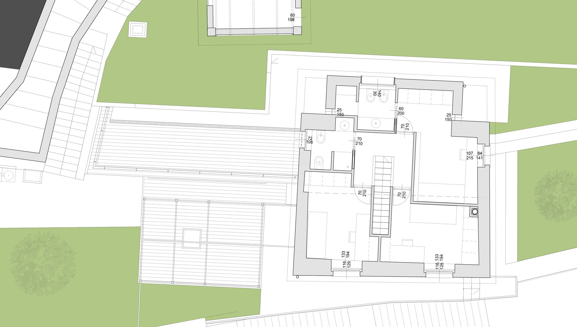
Il progetto di ristrutturazione edilizia riguarda una casa rurale che si sviluppa su due livelli, all’interno della sistemazione a fasce terrazzate di un giardino, immersa in un contesto ricco vegetazionale ad est, del tutto celata dai muri a secco delle creuze che delimitano i confini di proprietà. Il criterio che sta alla base della progettazione si esprime nel rapporto dialettico con il contesto storico ed ambientale, evitando ambiguità di lettura tra progetto e preesistenze. L’idea è quella di non andare ad agire sul profilo originario esterno della casa per salvaguardarne il carattere, e di sviluppare la parte di ampliamento possibile attraverso una soluzione spaziale parzialmente ipogea, che ospita la cucina e un locale di servizio.
Nell’interpretazione del sistema dei terrazzamenti l’intervento appartiene ad una logica topografica piuttosto che a quella tettonica di un tradizionale corpo di fabbrica. La visibilità dei nuovi locali infatti è integrata all’andamento della fascia all’interno del giardino murato e costituisce un “muro abitato”, rivestito da una tessitura orizzontale di listelli lapidei, in cui una cornice della stessa pietra arenaria definisce una bucatura a nastro sull’orizzonte marino; la visuale di scorcio dall’esterno, mette in evidenza la continuità prospettica del muro di confine della creuza con il nuovo muro della fascia abitata che termina scivolando dentro la soglia della porta d’ingresso della parte del corpo di fabbrica preesistente, in un rapporto analogo a quello che, tradizionalmente, istituisce il muro di contenimento terrazzato con un volume edificato.

Genova 2017

oggetto dell’incarico:
progetto definitivo ed esecutivo
fase di attuazione:
costruito
committente:
privato
responsabile:
arch. Simona Gabrielli
(studio Gap associati)

Top